2011, ENSA Paris La Villette
Encadrement | Betreuung Prof. Thibaud Babled, Prof. Edouard Ropars
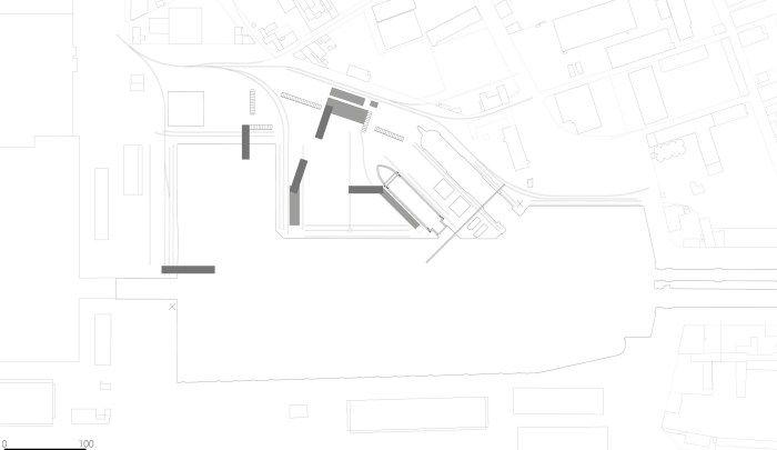
Malgré son hétérogénéité et la quasi-absence de tissu urbain sur le pourtour des bassins à flot de Bordeaux, le site présente une certaine unité, résultat d’un fragile équilibre entre les extrêmes qu’il présente: la difficulté de perception des distances, la lourde masse de la base sous-marine, face à la précarité des bateaux, à l’eau ou à terre, certains habités.
Trotz der Abwesenheit von urbaner Dichte an den Ufern des verlassenen Hafengeländes Bordeaux’ weist der Raum eine gewisse Einheit auf. Diese basiert auf dem fragilen Gleichgewicht zwischen den Extremen des Ortes: der Schwierigkeit, Distanzen wahrzunehmen, der schweren Betonmasse des U-Boot-Bunkers, und der Ungewissheit über die Zunkunft der wenigen Boote, die noch bewohnt werden.

base sous-marine et voiliers au loin | U-Boot-Bunker und Segelboote
Le site combine pleins et vides, volumes et creux, contrastes spectaculaires. L’intervention tente de s’y implanter en douceur tout en offrant au quartier de Bacalan, au Nord des bassins, un débouché sur les rives, qui permette à terme de redensifier le tissu urbain, lâche, entre le site et le centre de Bacalan.
Das Gelände verknüpft Volumen und Leere in spektakulären Konstrasten. Dieser Entwurf ist der Versuch einer behutsamen Implantation, indem dem Viertel Bacalan nördlich der Docks ein Zugang zu den Ufern geschaffen wird. Dadurch wird das Viertel neu gegliedert und zur weiteren Verdichtung zwischen Bacalans Zentrum und den Docks ermuntert.

Plan de situation | Lageplan
La portion choisie, donnant sur les formes de radoub, est entièrement vide. Il s’agit donc de créer un espace presque de toutes pièces en jouant avec l’horizontalité, l’eau des bassins, les vides et les contrastes.
Das ausgewählte Gelände führt zu den Trockendocks und ist absolut leer. Es geht also darum, einen Raum zu schaffen durch das Spiel mit der Horizontalität, dem Wasser, der Leere und den Kontrasten.

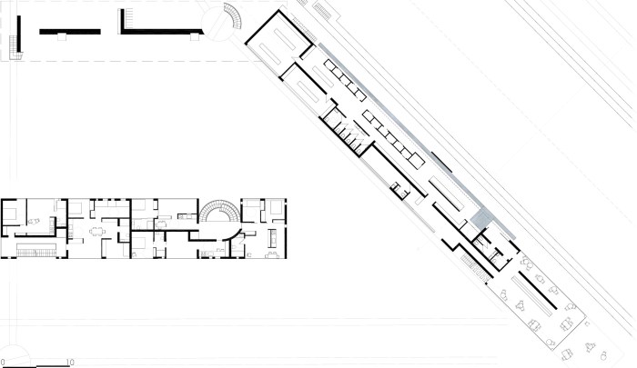
Plan des logements et de la piscine en plein air | Grundriss Wohnungen und Freibad
Sur une partie des rives, des volumes se déposent, équipements de plain-pied, logements comme en suspens dans les airs. La plus petite des formes de radoub est transformée en piscine de plein air. Un cinéma et une maison des associations contribuent à définir les limites de la portion choisie, tant du côté de la rue que des rives des bassins, tandis que deux des ensembles de logement entrent en rapport avec les bateaux habités.
Die öffentlichen Bauten sind einstöckig, während die Wohnungen in der Luft zu schweben scheinen. Das kleine Trockendock wird als Freibad umgenutzt. Ein Kino-Theater, sowie ein Jugend- und Vereinshaus tragen dazu bei, poröse Abgrenzungen für das Grundstück zu definieren und schaffen einen schrittweisen Übergang zur alten Hafenlandschaft und ihren noch bewohnten Schiffen.

Coupes à travers le bassin et le vestiaire, élévation de la piscine | Schnitt durch Schwimmbecken und Garderobe, Ansicht Freibad
La densité reste faible. Le sol, désert de pierre, est un composant important de la mémoire du lieu. Les cheminements et les accès aux logements sont définis par les voies de chemin de fer. Les traverses sont comblées de terre et les herbes folles font le reste. Peu à peu les voies verdissent, aidées par l´homme au besoin. Des fleurs, des baies poussent. Habitants et visiteurs cheminent le long de ces jardins en longueur. Une bande de sol longeant les voies est aménagée pour garantir l’accès facile au site.
Der Boden ist ein wichtiges Charakteristikum des örtlichen Gedächtnisses. In dieser unberührten Steinwüste wirken die Gleise wie Wegweiser, der den Besucher zu den verschiedenen Anlagen führen. Die Wege folgen den ehemaligen Eisenbahnschienen. Die Schwellen werden mit Erde verfüllt und das Wildkraut wächst von alleine. Nach und nach werden die Schienen grün, hin und wieder hilft der Mensch etwas nach. Es wachsen Blumen und Beeren. Bewohner und Besucher schreiten entlang dieses länglichen Gartens. Um den Zugang zum Gelände zu erleichtern wird ein Bodenstreifen an den Schienen barrierefrei ausgebaut.

Chemins | Wege