2012, UdK Berlin
Encadrement | Betreuung Prof. Andreas Fuhrimann, Prof. Gabriele Hächler, WM Bernd Jäger
Les ruines des anciens silos de Danzig, situés en pleine ville, définissent un lieu au-delà du quotidien urbain. Elles témoignent d’un autre monde. Le visiteur fait face au décor de la vieille ville reconstruite après-guerre, mais il perçoit et respire en premier lieu le port et la mer toute proche.
Die Speicherruinen mitten in der Stadt Danzig bilden einen Ort jenseits des urbanen Alltages. Sie künden von einer anderen Welt. Man sitzt vor der prachtvoll rekonstruierten
Altstadtkulisse, doch spürt und riecht man vor allem den Hafen und das nahe Meer.
Les surfaces vitrées déposées entre les ruines définissent les contours du nouveau bâtiment | Zwischen den Schotten gezogene Glasflächen bilden die Konturen des neuen Gebäudes.
Le projet s’inspire de la ville reconstruite dont les façades racontent, dans un language des années 1950 et 60, la superbe du Danzig d’avant-guerre. Derrière les étroits pignons que l’on voit de la rue se cachent des appartements modernes et de larges cours intérieures. Le mouvement street art s’est lui aussi approprié la façade, transformant des bâtiments en objets autonomes, comme déposés dans l’espace urbain. De la même manière, la Kunsthalle (halle d’exposition à mi-chemin entre la galerie et le musée) expérimente avec le mur de projection: comment celui-ci peut-il devenir élement à part entière de l’espace urbain?
Der Entwurf lehnt sich an die rekonstruierte, in gewisser Weise manieristische Altstadt, deren Fassaden in der Formensprache der 50er und 60er Jahren von einer glänzenden Vorkriegszeit erzählen. Die schmalen, historisch nachgebildeten Giebelhäuser bergen moderne Grundrisse und breite Innenhöfe. Auch in der Streetartszene werden Fassaden genutzt, um aus Gebäuden eigenständige Objekten im Stadtraum zu machen. Auf ähnliche Art spielt die Kunsthalle mit dem Begriff der Projektionsfläche als urbanes Gestaltungselement.

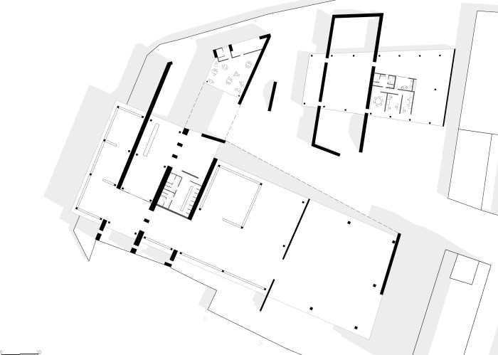
Plan halle d’exposition, café et ateliers | Grundriss Austellungshalle, Café und Ateliers
Arrivé à la Motława par la Ville Droite, le visiteur se retrouve devant un bâtiment de plain-pied d’apparence modeste qui capte la force dramaturgique des ruines et invite à l’expérience artistique. La frontière ténue entre l’intérieur et l’extérieur est définie par des surfaces vitrées déposées à travers les ruines. Des cloisons mobiles permettent de découper les espaces intérieurs selon les besoins des oeuvres exposées et d’amener l’obscurité lorsqu’elle est nécéssaire.
Aus der Rechtstadt an der Mottlau angekommen, trifft der Besucher auf ein flaches, anscheinend zurückhaltendes Gebäude, das die Dramatik der Ruinen auffängt und zur künstlerischen Erfahrung einlädt. Durch die Ruinen werden Glasflächen gezogen, die den Innenraum der Kunsthalle definieren. Die Grenzen zwischen Innen und Außen werden bespielt. Durch mobile, umbaubare Wandflächen werden die verschieden großen Innenräume den einzelnen Kunstwerken entsprechend gegliedert.
Élévations halle d’exposition, élévation café et ateliers | Ansicht Austellungshalle, Ansicht Café und Ateliers
La façade de verre sert ainsi de vitrine à la Kunsthalle de Danzig. Elle peut être laissée transparente et inviter habitants et touristes à jeter un oeil, de loin, jusqu’au coeur du bâtiment. Elle peut aussi jouer avec la couleur ou la lumière, ou encore servir d’affiche géante pour les expositions à venir.
Ob durch Licht, Farbe, bemalte Wandflächen oder einfach durch die Transparenz des Gebäudes, die zur Stadt weisende Glasfassade dient als Schaufenster der Kunsthalle Danzig, die sich so Bewohnern und Touristen gleichermaßen präsentiert.
Coupe à travers la halle d’exposition et les ateliers, coupe à travers le café | Schnitt durch Ausstellungshalle und Ateliers, Schnitt durch Café